Die Zentrale 41

Willkommen in der Zentrale 41
Modern, urban, zentral.
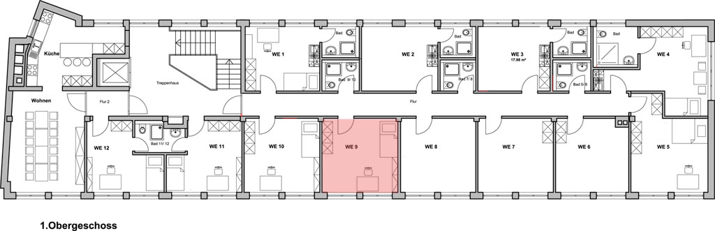
Wie der Name bereits vermuten lässt, bietet die Zentrale 41 mitten in der Stadt Flensburg 41 Studenten-Appartements. Damit sind kurze Wege zum Einkaufen, zur Universität oder Fachhochschule und zu den beliebten Treffpunkten wie dem Hafen, Cafés, Clubs sowie zu den Parks und Stränden garantiert. Die Wohnungen in der Dr.-Todsen-Straße sind zwischen 16 und 28 m2 groß, hell, modern und frisch renoviert. Die größeren Appartements verfügen über ein eigenes Badezimmer sowie eine Pantryküche. In jeder der vier Etagen gibt es einen großen Gemeinschaftsraum mit Küche, der sich z. B. für Lerngruppen und vieleandere, gemeinsame Aktivitäten perfekt eignet.
All-inclusive-Miete für volle Kostenkontrolle
Die monatlichen Mieten liegen zwischen 303,- € und 499,- € und beinhalten alle anfallenden Kosten wie Wärme, Wasser, Strom, Kabel Deutschland-Anschluss mit Fernsehen und 16 Mbit Internet. So können Sie sich völlig ohne Risiko auf das konzentrieren,
was Ihnen wichtig ist – Ihr Studium.
Wohnungen
Wohnungsbörse
Sie möchten eine E-Mail erhalten, sobald ein Appartement in der Zentrale 41 frei wird?
Melden Sie sich gleich an!
Ich möchte über freie Wohnungen Informiert werden!
Freie Wohnungen
| Wohnungs-Nr. | Beschreibung | Wohnfläche m² | Miete | Geschoss |
|---|---|---|---|---|
| Wohnung 5 | Galerie anzeigen | 25,45 m² | 500,00 € | 1. OG |
| Wohnung 9 | Galerie anzeigen | 18,94 m² | 433,00 € | 1. OG |
| Wohnung 12 | Galerie anzeigen | 16,11 m² | 396,00 € | 1. OG |
| Wohnung 16 | Galerie anzeigen | 18,87 m² | 464,00 € | 2. OG |
| Wohnung 26 | Galerie anzeigen | 18,04 m² | 444,00 € | 3. OG |
Lageplan

Kontakt
Zentrale 41, Dr.-Todsen-Straße 7, 24937 Flensburg
Tel.: 0 46 21 / 811-100, E-Mail: flensburg@gewoba-nord.de
Impressum
Angaben gemäß § 5 TMG:
GEWOBA Nord Baugenossenschaft eG
Moltkestraße 32
24837 Schleswig
Vorstand: Dietmar Jonscher, Steffan Liebscher
Aufsichtsratsvorsitzender: Kay Abeling
Amtsgericht Schleswig, GnR 0051
Redaktionelle Verantwortung: Sabrina Hurz
Kontakt:
Telefon: 04621 - 811 100
Fax: 04621 - 811 810
E-Mail: info@gewoba-nord.de.de
Mitglied im Verband norddeutscher Wohnungsunternehmen e. V
Prüfungsverband:
Verband norddeutscher Wohnungsunternehmen e.V.
Tangstedter Landstraße 83
22415 Hamburg
Umsatzsteuer-Identifikationsnummer gemäß §27 a Umsatzsteuergesetz:
DE 134659578
Wirtschaftsidentifikationsnummer:
15 293 03510
Aufsichtsbehörde:
Zuständige Aufsichtsbehörde für die Tätigkeit als Makler, Bauträger und Baubetreuer: Stadt Schleswig
Ordnungsamt Plessenstr. 7
24837 Schleswig
Angaben zur Berufshaftpflichtversicherung
Name und Sitz des Versicherers:
Betriebshaftpflichtversicherung
Allianz Versicherung AG
10900 Berlin
Geltungsbereich: Bundesweit
Architektenhaftpflicht
Provinzial Nord Brandkasse AG
Sophienblatt 33
24114 Kiel
Geltungsbereich: EU, Schweiz, Lichtenstein, Norwegen und Island
Vermögensschaden-Haftpflichtversicherung
ERGO Versicherungsgruppe AG
Victoriaplatz 2
40198 Düsseldorf
Geltungsbereich: Bundesweit
Verantwortlich für den Inhalt nach § 55 Abs. 2 RStV:
Sabrina Hurz
GEWOBA Nord Baugenossenschaft eG
Moltkestraße 32
24837 Schleswig
Streitschlichtung
Die Europäische Kommission stellt eine Plattform zur Online-Streitbeilegung (OS) bereit: https://ec.europa.eu/consumers/odr.
Unsere E-Mail-Adresse finden Sie oben im Impressum.
Wir sind nicht bereit oder verpflichtet, an Streitbeilegungsverfahren vor einer Verbraucherschlichtungsstelle teilzunehmen.
Disclaimer
Haftung für Inhalte
Als Diensteanbieter sind wir gemäß § 7 Abs.1 TMG für eigene Inhalte auf diesen Seiten nach den allgemeinen Gesetzen verantwortlich. Nach §§ 8 bis 10 TMG sind wir als Diensteanbieter jedoch nicht verpflichtet, übermittelte oder gespeicherte fremde Informationen zu überwachen oder nach Umständen zu forschen, die auf eine rechtswidrige Tätigkeit hinweisen.
Verpflichtungen zur Entfernung oder Sperrung der Nutzung von Informationen nach den allgemeinen Gesetzen bleiben hiervon unberührt. Eine diesbezügliche Haftung ist jedoch erst ab dem Zeitpunkt der Kenntnis einer konkreten Rechtsverletzung möglich. Bei Bekanntwerden von entsprechenden Rechtsverletzungen werden wir diese Inhalte umgehend entfernen.
Haftung für Links
Unser Angebot enthält Links zu externen Websites Dritter, auf deren Inhalte wir keinen Einfluss haben. Deshalb können wir für diese fremden Inhalte auch keine Gewähr übernehmen. Für die Inhalte der verlinkten Seiten ist stets der jeweilige Anbieter oder Betreiber der Seiten verantwortlich. Die verlinkten Seiten wurden zum Zeitpunkt der Verlinkung auf mögliche Rechtsverstöße überprüft. Rechtswidrige Inhalte waren zum Zeitpunkt der Verlinkung nicht erkennbar.
Eine permanente inhaltliche Kontrolle der verlinkten Seiten ist jedoch ohne konkrete Anhaltspunkte einer Rechtsverletzung nicht zumutbar. Bei Bekanntwerden von Rechtsverletzungen werden wir derartige Links umgehend entfernen.
Urheberrecht
Die durch die Seitenbetreiber erstellten Inhalte und Werke auf diesen Seiten unterliegen dem deutschen Urheberrecht. Die Vervielfältigung, Bearbeitung, Verbreitung und jede Art der Verwertung außerhalb der Grenzen des Urheberrechtes bedürfen der schriftlichen Zustimmung des jeweiligen Autors bzw. Erstellers. Downloads und Kopien dieser Seite sind nur für den privaten, nicht kommerziellen Gebrauch gestattet.
Soweit die Inhalte auf dieser Seite nicht vom Betreiber erstellt wurden, werden die Urheberrechte Dritter beachtet. Insbesondere werden Inhalte Dritter als solche gekennzeichnet. Sollten Sie trotzdem auf eine Urheberrechtsverletzung aufmerksam werden, bitten wir um einen entsprechenden Hinweis. Bei Bekanntwerden von Rechtsverletzungen werden wir derartige Inhalte umgehend entfernen.
Datenschutz
1. Datenschutz auf einen Blick
Die folgenden Hinweise geben einen einfachen Überblick darüber, was mit Ihren personenbezogenen Daten passiert, wenn Sie unsere Website besuchen. Personenbezogene Daten sind alle Daten, mit denen Sie persönlich identifiziert werden können. Ausführliche Informationen zum Thema Datenschutz entnehmen Sie unserer unter diesem Text aufgeführten Datenschutzerklärung.
Datenerfassung auf unserer Website
Wer ist verantwortlich für die Datenerfassung auf dieser Website?
Die Datenverarbeitung auf dieser Website erfolgt durch den Websitebetreiber. Dessen Kontaktdaten können Sie dem Impressum dieser Website entnehmen.
Wie erfassen wir Ihre Daten?
Ihre Daten werden zum einen dadurch erhoben, dass Sie uns diese mitteilen. Hierbei kann es sich z.B. um Daten handeln, die Sie in ein Kontaktformular eingeben.
Andere Daten werden automatisch beim Besuch der Website durch unsere IT-Systeme erfasst. Das sind vor allem technische Daten (z.B. Internetbrowser, Betriebssystem oder Uhrzeit des Seitenaufrufs). Die Erfassung dieser Daten erfolgt automatisch, sobald Sie unsere Website betreten.
Wofür nutzen wir Ihre Daten?
Ein Teil der Daten wird erhoben, um eine fehlerfreie Bereitstellung der Website zu gewährleisten. Andere Daten können zur Analyse Ihres Nutzerverhaltens verwendet werden.
Welche Rechte haben Sie bezüglich Ihrer Daten?
Sie haben jederzeit das Recht unentgeltlich Auskunft über Herkunft, Empfänger und Zweck Ihrer gespeicherten personenbezogenen Daten zu erhalten. Sie haben außerdem ein Recht, die Berichtigung, Sperrung oder Löschung dieser Daten zu verlangen. Hierzu sowie zu weiteren Fragen zum Thema Datenschutz können Sie sich jederzeit unter der im Impressum angegebenen Adresse an uns wenden. Des Weiteren steht Ihnen ein Beschwerderecht bei der zuständigen Aufsichtsbehörde zu.
2. Allgemeine Hinweise und Pflichtinformationen
Datenschutz
Die Betreiber dieser Seiten nehmen den Schutz Ihrer persönlichen Daten sehr ernst. Wir behandeln Ihre personenbezogenen Daten vertraulich und entsprechend der gesetzlichen Datenschutzvorschriften sowie dieser Datenschutzerklärung.
Wenn Sie diese Website benutzen, werden verschiedene personenbezogene Daten erhoben. Personenbezogene Daten sind Daten, mit denen Sie persönlich identifiziert werden können. Die vorliegende Datenschutzerklärung erläutert, welche Daten wir erheben und wofür wir sie nutzen. Sie erläutert auch, wie und zu welchem Zweck das geschieht.
Wir weisen darauf hin, dass die Datenübertragung im Internet (z.B. bei der Kommunikation per E-Mail) Sicherheitslücken aufweisen kann. Ein lückenloser Schutz der Daten vor dem Zugriff durch Dritte ist nicht möglich.
Hinweis zur verantwortlichen Stelle
Die verantwortliche Stelle für die Datenverarbeitung auf dieser Website ist:
BUD BAU- UND DIENSTLEISTUNG GMBH
Moltkestr. 36
24837 Schleswig
Telefon: 04621 - 811 966
E-Mail: info@budgmbh.de
Verantwortliche Stelle ist die natürliche oder juristische Person, die allein oder gemeinsam mit anderen über die Zwecke und Mittel der Verarbeitung von personenbezogenen Daten (z.B. Namen, E-Mail-Adressen o. Ä.) entscheidet.
Widerruf Ihrer Einwilligung zur Datenverarbeitung
Viele Datenverarbeitungsvorgänge sind nur mit Ihrer ausdrücklichen Einwilligung möglich. Sie können eine bereits erteilte Einwilligung jederzeit widerrufen. Dazu reicht eine formlose Mitteilung per E-Mail an uns. Die Rechtmäßigkeit der bis zum Widerruf erfolgten Datenverarbeitung bleibt vom Widerruf unberührt.
Recht auf Datenübertragbarkeit
Sie haben das Recht, Daten, die wir auf Grundlage Ihrer Einwilligung oder in Erfüllung eines Vertrags automatisiert verarbeiten, an sich oder an einen Dritten in einem gängigen, maschinenlesbaren Format aushändigen zu lassen. Sofern Sie die direkte Übertragung der Daten an einen anderen Verantwortlichen verlangen, erfolgt dies nur, soweit es technisch machbar ist.
SSL- bzw. TLS-Verschlüsselung
Diese Seite nutzt aus Sicherheitsgründen und zum Schutz der Übertragung vertraulicher Inhalte, wie zum Beispiel Bestellungen oder Anfragen, die Sie an uns als Seitenbetreiber senden, eine SSL-bzw. TLS-Verschlüsselung. Eine verschlüsselte Verbindung erkennen Sie daran, dass die Adresszeile des Browsers von “http://” auf “https://” wechselt und an dem Schloss-Symbol in Ihrer Browserzeile.
Wenn die SSL- bzw. TLS-Verschlüsselung aktiviert ist, können die Daten, die Sie an uns übermitteln, nicht von Dritten mitgelesen werden.
Auskunft, Sperrung, Löschung
Sie haben im Rahmen der geltenden gesetzlichen Bestimmungen jederzeit das Recht auf unentgeltliche Auskunft über Ihre gespeicherten personenbezogenen Daten, deren Herkunft und Empfänger und den Zweck der Datenverarbeitung und ggf. ein Recht auf Berichtigung, Sperrung oder Löschung dieser Daten. Hierzu sowie zu weiteren Fragen zum Thema personenbezogene Daten können Sie sich jederzeit unter der im Impressum angegebenen Adresse an uns wenden.
Widerspruch gegen Werbe-Mails
Der Nutzung von im Rahmen der Impressumspflicht veröffentlichten Kontaktdaten zur Übersendung von nicht ausdrücklich angeforderter Werbung und Informationsmaterialien wird hiermit widersprochen. Die Betreiber der Seiten behalten sich ausdrücklich rechtliche Schritte im Falle der unverlangten Zusendung von Werbeinformationen, etwa durch Spam-E-Mails, vor.
3. Datenschutzbeauftragter
Gesetzlich vorgeschriebener Datenschutzbeauftragter
Wir haben für unser Unternehmen einen Datenschutzbeauftragten bestellt.
GEWOBA Nord Baugenossenschaft eG
Thomas Daske
Moltkestraße 32
24837 Schleswig
Telefon: +49 46 21 / 811 – 328
E-Mail: t.daske@gewoba-nord.de
4. Datenerfassung auf unserer Website
Cookies
Die Internetseiten verwenden teilweise so genannte Cookies. Cookies richten auf Ihrem Rechner keinen Schaden an und enthalten keine Viren. Cookies dienen dazu, unser Angebot nutzerfreundlicher, effektiver und sicherer zu machen. Cookies sind kleine Textdateien, die auf Ihrem Rechner abgelegt werden und die Ihr Browser speichert.
Die meisten der von uns verwendeten Cookies sind so genannte “Session-Cookies”. Sie werden nach Ende Ihres Besuchs automatisch gelöscht. Andere Cookies bleiben auf Ihrem Endgerät gespeichert bis Sie diese löschen. Diese Cookies ermöglichen es uns, Ihren Browser beim nächsten Besuch wiederzuerkennen.
Sie können Ihren Browser so einstellen, dass Sie über das Setzen von Cookies informiert werden und Cookies nur im Einzelfall erlauben, die Annahme von Cookies für bestimmte Fälle oder generell ausschließen sowie das automatische Löschen der Cookies beim Schließen des Browser aktivieren. Bei der Deaktivierung von Cookies kann die Funktionalität dieser Website eingeschränkt sein.
Cookies, die zur Durchführung des elektronischen Kommunikationsvorgangs oder zur Bereitstellung bestimmter, von Ihnen erwünschter Funktionen (z.B. Warenkorbfunktion) erforderlich sind, werden auf Grundlage von Art. 6 Abs. 1 lit. f DSGVO gespeichert. Der Websitebetreiber hat ein berechtigtes Interesse an der Speicherung von Cookies zur technisch fehlerfreien und optimierten Bereitstellung seiner Dienste. Soweit andere Cookies (z.B. Cookies zur Analyse Ihres Surfverhaltens) gespeichert werden, werden diese in dieser Datenschutzerklärung gesondert behandelt.
Server-Log-Dateien
Der Provider der Seiten erhebt und speichert automatisch Informationen in so genannten Server-Log-Dateien, die Ihr Browser automatisch an uns übermittelt. Dies sind:
- Browsertyp und Browserversion
- verwendetes Betriebssystem
- Referrer URL
- Hostname des zugreifenden Rechners
- Uhrzeit der Serveranfrage
- IP-Adresse
Eine Zusammenführung dieser Daten mit anderen Datenquellen wird nicht vorgenommen.
Grundlage für die Datenverarbeitung ist Art. 6 Abs. 1 lit. f DSGVO, der die Verarbeitung von Daten zur Erfüllung eines Vertrags oder vorvertraglicher Maßnahmen gestattet.
Kontaktformular
Wenn Sie uns per Kontaktformular Anfragen zukommen lassen, werden Ihre Angaben aus dem Anfrageformular inklusive der von Ihnen dort angegebenen Kontaktdaten zwecks Bearbeitung der Anfrage und für den Fall von Anschlussfragen bei uns gespeichert. Diese Daten geben wir nicht ohne Ihre Einwilligung weiter.
Die Verarbeitung der in das Kontaktformular eingegebenen Daten erfolgt somit ausschließlich auf Grundlage Ihrer Einwilligung (Art. 6 Abs. 1 lit. a DSGVO). Sie können diese Einwilligung jederzeit widerrufen. Dazu reicht eine formlose Mitteilung per E-Mail an uns. Die Rechtmäßigkeit der bis zum Widerruf erfolgten Datenverarbeitungsvorgänge bleibt vom Widerruf unberührt.
Die von Ihnen im Kontaktformular eingegebenen Daten verbleiben bei uns, bis Sie uns zur Löschung auffordern, Ihre Einwilligung zur Speicherung widerrufen oder der Zweck für die Datenspeicherung entfällt (z.B. nach abgeschlossener Bearbeitung Ihrer Anfrage). Zwingende gesetzliche Bestimmungen – insbesondere Aufbewahrungsfristen – bleiben unberührt.
5. Plugins und Tools
Google Web Fonts
Diese Seite nutzt zur einheitlichen Darstellung von Schriftarten so genannte Web Fonts, die von Google bereitgestellt werden. Beim Aufruf einer Seite lädt Ihr Browser die benötigten Web Fonts in ihren Browsercache, um Texte und Schriftarten korrekt anzuzeigen.
Zu diesem Zweck muss der von Ihnen verwendete Browser Verbindung zu den Servern von Google aufnehmen. Hierdurch erlangt Google Kenntnis darüber, dass über Ihre IP-Adresse unsere Website aufgerufen wurde. Die Nutzung von Google Web Fonts erfolgt im Interesse einer einheitlichen und ansprechenden Darstellung unserer Online-Angebote. Dies stellt ein berechtigtes Interesse im Sinne von Art. 6 Abs. 1 lit. f DSGVO dar.
Wenn Ihr Browser Web Fonts nicht unterstützt, wird eine Standardschrift von Ihrem Computer genutzt.
Weitere Informationen zu Google Web Fonts finden Sie unter https://developers.google.com/fonts/faq und in der Datenschutzerklärung von Google: https://www.google.com/policies/privacy/.
Google Maps
Diese Seite nutzt über eine API den Kartendienst Google Maps. Anbieter ist die Google Inc., 1600 Amphitheatre Parkway, Mountain View, CA 94043, USA.
Zur Nutzung der Funktionen von Google Maps ist es notwendig, Ihre IP Adresse zu speichern. Diese Informationen werden in der Regel an einen Server von Google in den USA übertragen und dort gespeichert. Der Anbieter dieser Seite hat keinen Einfluss auf diese Datenübertragung.
Die Nutzung von Google Maps erfolgt im Interesse einer ansprechenden Darstellung unserer Online-Angebote und an einer leichten Auffindbarkeit der von uns auf der Website angegebenen Orte. Dies stellt ein berechtigtes Interesse im Sinne von Art. 6 Abs. 1 lit. f DSGVO dar.
Mehr Informationen zum Umgang mit Nutzerdaten finden Sie in der Datenschutzerklärung von Google: https://www.google.de/intl/de/policies/privacy/.















